安全閥作用
安全閥是安裝在設備、容器或管道上,起超壓保護作用,當容器或管道內壓力超過允許值時,閥門自動開啟排放介質;當壓力降低到規定值時,閥門自動關閉。安全閥可根據驅動模式不同分為直接作用式和先導式。直接式安全閥是由閥門進口的系統壓力直接驅動,此時,它由彈簧或重錘提供的機械栽荷來克服作用在閥瓣下方的介質壓力。先導式安全閥是由一個機構來先導驅動,利用機構釋放或施加一個關閉力使安全閥開啟或關閉。安全從外部結構上可分為:有無扳手、有無波紋管、有無散熱片。

安全閥是安裝在設備、容器或管道上,起超壓保護作用,當容器或管道內壓力超過允許值時,閥門自動開啟排放介質;當壓力降低到規定值時,閥門自動關閉。安全閥可根據驅動模式不同分為直接作用式和先導式。直接式安全閥是由閥門進口的系統壓力直接驅動,此時,它由彈簧或重錘提供的機械栽荷來克服作用在閥瓣下方的介質壓力。先導式安全閥是由一個機構來先導驅動,利用機構釋放或施加一個關閉力使安全閥開啟或關閉。安全從外部結構上可分為:有無扳手、有無波紋管、有無散熱片。


型號
A38Y-16C/25/40
A43H-16C/25/40
A37H-16C/25/40
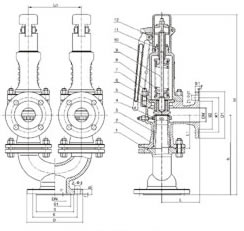
雙聯彈簧式安全閥實用于工作溫度≤350℃的蒸汽、水等介質的設備和管路上。作為超壓保護裝置。連接法蘭尺度按JB/T......94的系列
重要零部件材料闡明
A38Y、A43H、A37H型雙聯彈簧式安全閥除三通(材料為WCB)外,其余零件的材料均和A47H、A48Y型彈簧式安全閥雷同。
A38Y、A43H、A37H型雙聯安全閥是在Y型接頭上裝設兩個同樣規格的A48Y或A47H型安全閥而構成,其公稱通徑系列指Y型接頭進口通徑,其組合情況如下表:
|
|
A43Y型
|
相應的A47Y型
|
|
50
|
32×2
|
|
80
|
50×2
|
|
100
|
80×2
|
|
125
|
100×2
|
|
150
|
125×2
|
|
A37Y型
|
相應的A47Y型
|
|
50
|
32×2
|
|
80
|
65×2
|
|
100
|
80×2
|
|
125
|
100×2
|
|
150
|
125×2
|
雙聯彈簧式安全閥的外形尺寸和連接尺寸,請接洽我們索取。